David Immobilier
Agences Immobilières Paris : 8, 9, 17 et 18ème arrondissement
01.42.64.11.11 4 rue St-Lazare Paris 75009 France

75009 Paris 9ème Martyrs                    
Appartement 2 pièces - 62m²

731 500 €

2
62 m²
2 pièces
1 chambre
Dans le quartier très prisé de Lorette-Martyrs, à proximité immédiate des commerces et transports (M° Notre Dame de Lorette). Appartement ancien au 2e étage avec ascenseur.

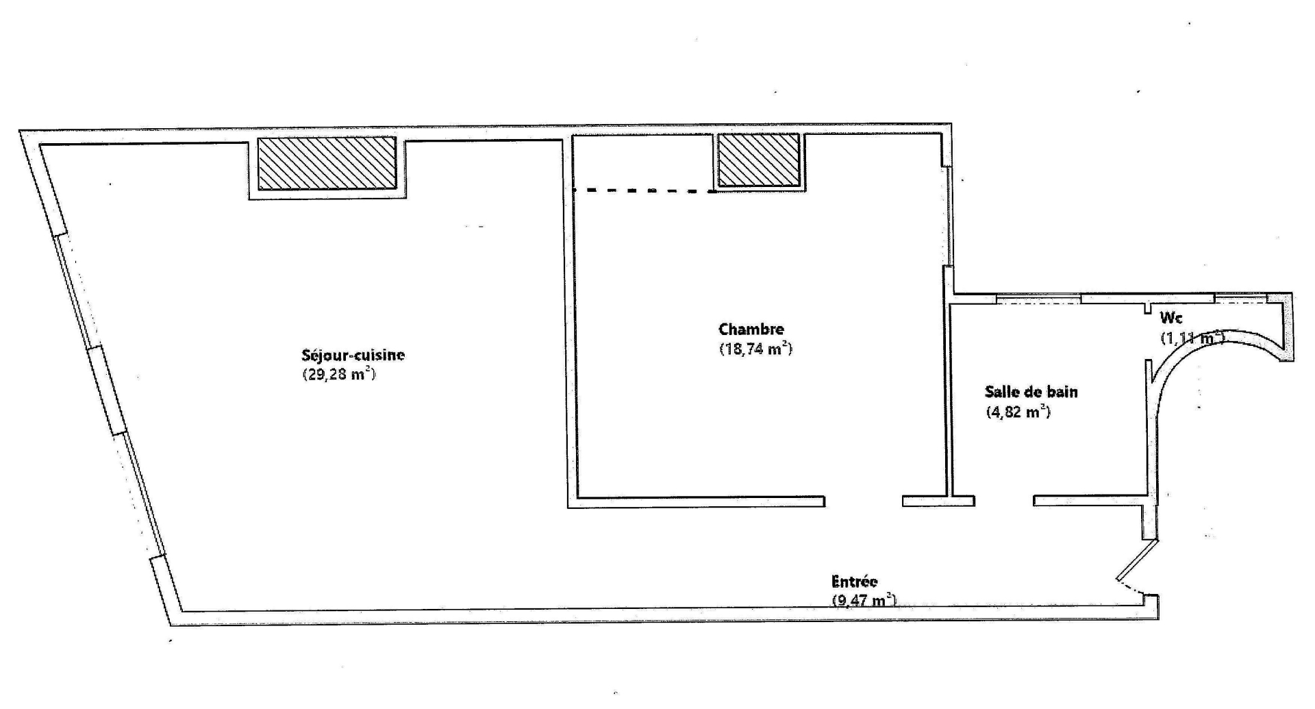
Ce bien vous séduira par son agencement optimal en double exposition (rue/cour) garantissant une belle clarté. Il se compose d'une entrée, un double séjour spacieux avec cuisine ouverte (sur Rue des Martyrs), une chambre au calme sur cour, une salle de bains et un WC séparé.

Vendu avec une cave. Idéal pour un mode de vie central et aisé
Contacter David St-Georges-Martyrs par téléphone au 01.53.21.99.00 ou par email pour la référence CDS2925 :
1 + 2 =
- Prix hors honoraires : 700 000 €
- Honoraires à la charge de l'acquéreur : 4,50%
- Copropriété : 27 lots
- Charges courantes provisionnelles annuelles : 1 800,00 €
Aucune procédure en cours menée sur le fondement des articles 29-1A et 29-1de la loi 65-557 du 10 juillet 1965 et de l'Article L.615-6 du CCH
-
- Les informations sur les risques auxquels ce bien est exposé sont disponibles sur le site Géorisques : www.georisques.gouv.fr - Copropriété : 27 lots
Diagnostic de performance énergétique : 158
Gaz à effet de serre : 33

Date du diagnostic : 01/10/2024


Diagnostic de performance énergétique